OT 2

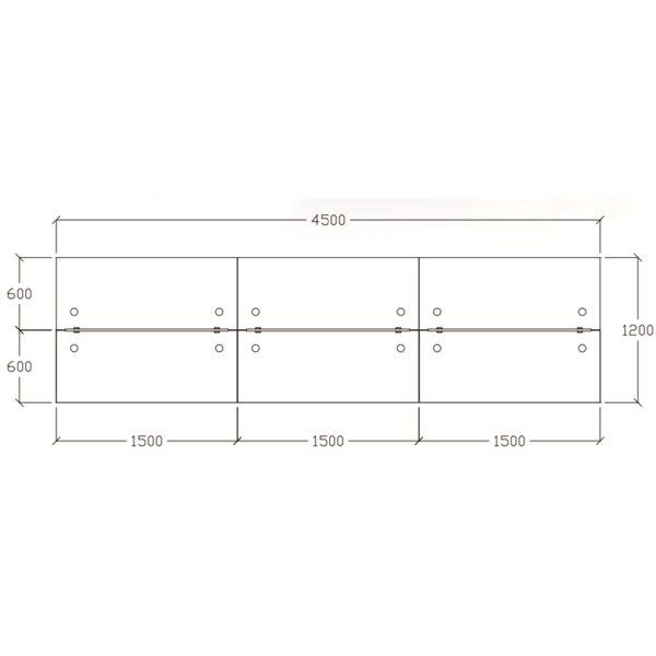
Size : L4500 x W1200mm

Category: